역률은 부하와 연동돼 움직이므로 부하량 변화가 큰 산업현장은 역률 변동 폭이 커지게 된다.
그렇다 하여 역률이 반드시 부하량에 정비례해 움직이는 것은 아니다.
부하 운전에 의해 발생한 무효전력 크기에 따라 역률 진폭이 정해지는데 사용 부하량이 같다 하더라도 무효전력 발생이 적은 부하는 마찬가지로 변동 폭이 작게 된다.
산업현장엔 상황에 의해 년 중 무휴 1일 24시간 계속해 운전을 필요로 하는 부하들이 있다.
그런 반면 대부분 부하는 낮에 운전하고 야간에는 쉬게 된다.
그렇다 보니 역률 역시 낮에 나쁘고 야간 휴지(休止)기에 다시 양호한 상태가 된다.
역률 개선을 목적으로 설치한 콘덴서의 경우 인위적으로 스위치를 off 하지 않는 한 선로에 투입된 순간부터 off 되기전 까지 선로에 진상 무효전력을 계속해 공급하게 된다.
이런 상태의 진상 무효전력 공급은 진상 무효전력을 더 증가시키게 하므로 야간 진상 역률을 더 나쁘게 한다.
하여 부하 휴지기인 야간에는 콘덴서를 반드시 off 해야 한다.
또 주간 시간대라 하더라도 역률이 무효전력에 비례해 움직이므로 부하 움직임에 맞춰 콘덴서를 제어해 줘야 한다.
역률은?
전력효율을 높이는 데 매우 중요한 역할을 한다.
역률을 높이는 방법은 콘덴서를 능동적으로 제어 부하 측에 적절한 무효전력을 공급함으로 달성되는데, 여기에 최적화된 설비가 바로 자동 역률 조정기(Automatic power factor controller) 이다.
역률이 낮아지면?
변압기 동손 및 선로 손실은 증가하고 전압강하 및 전압변동의 진폭이 커져 전압손실이 증가한다.
여기에 저 역률에 따른 피상전류 증가로 전력설비의 부담 역시 늘어나게 된다.
아런 부담 증가로 설비 여유분은 감소하고 전력 요금이 상승하며 부하 말단은 전압선실로 인해 샌산성이 저하된다.
역률 저하는 전력 사용에 나쁜 영향을 주므로 항상 일정 이상의 고 역률 유지가 반드시 필요하다
https://samwhaeng.kr/bank-drawing/
뱅크도면 - 삼화엔지니어링 전력용콘덴서 전문기업
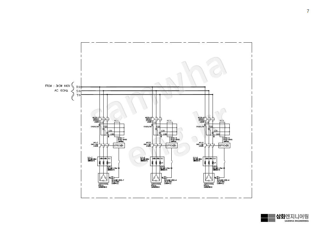
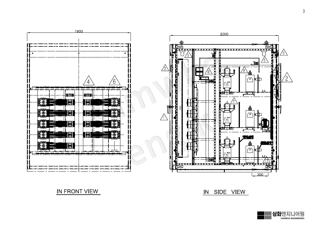
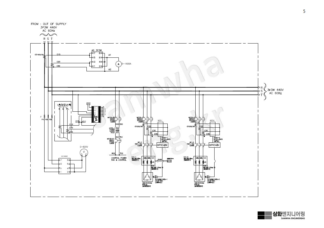
뱅크용량 및 수량 ; 440V 3φ 60Hz 810kvar – 4Bank 단기 콘덴서용량 및 수량 ; 440V 3φ 60Hz 90kvar – 9Step 자동역률조정기 (A P F …
samwhaeng.kr
'전력용 콘덴서' 카테고리의 다른 글
콘덴서의 직, 병렬 회로 계산 (1) | 2024.01.29 |
---|---|
전력용 콘덴서 (Power Capacitor). (1) | 2024.01.28 |
대형 모터 운전 시 발생한 전압강하 크기는? (1) | 2024.01.15 |
6.6kV 3P 60Hz 고압전력용 콘덴서뱅크의 모의, 설계, 제작? (0) | 2024.01.08 |
전압강하를 고려한 발전단 측 전압은? (2) | 2023.12.26 |